Receive

$2,000 in

Closing Costs

with Preferred

Lender

Welcome to

Illustration of a Tree

2 st. charles dr.

Triangle Geometric Shape
bedroom icon

4 BDR

bathroom icon

2.5 BAT​H

garage
House Measurement Icon

2 CAR​

2618 SQ. F​T.

Page Size Icon

0.29 ACRES

Beautiful New ​Construction Home in


Mossy Hollow

Construction House Structure

$365,200

New Construction Build

Mossy Hollow


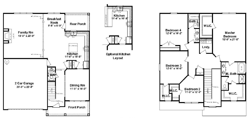
This amazing 2618 floor plan by Faircloth homes features four bedrooms and 2.5 ​bathrooms. Master bedroom with en suite is located upstairs along with the laundry. ​Oversized family room also features a fireplace. Formal dining room and breakfast nook ​area. All bedrooms are located upstairs. 2 inch for wood blinds, gutters and irrigation ​system included.

Amenities

Playground Icon

Playground

Club House Icon in B&W Color.

Clubhouse

Triangle Geometric Shape
Architectural Plans and Designs

Faircloth Homes #2618

Triangle Geometric Shape

Second Floor

First Floor

Meet Faircloth Homes

We have been building in the area since 2005 and have built a reputation of being a high quality builder offering ​affordable living. G. Eddie Faircloth, President, has lived and worked in the Augusta area almost his entire life.

We are a family oriented company and have locally established roots both professionally, and personally.


We’ve worked hard to build solid relationships with our local contractors, vendors, and agents.

Faircloth Homes also offers the America’s Choice Home Buyers Warranty Program which provides comprehensive ​coverage and service in your new home.


Our goal is to provide your family with a beautiful home that will bring joy for years to come.

Come see what we have to offer!

Triangle Geometric Shape
Architectural Plans and Designs

Mossy Hollow

Home Address Icon

2 St. Charles Dr.

Paint Circle Brush Stroke

Billi Jo Cape

Simple Facebook Icon
Copyright Symbol Icon

Faircloth Homes 2024 | Site Design by Carolina Roots Marketing